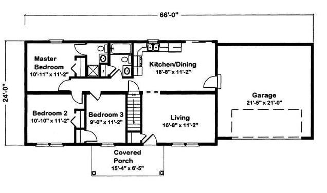
PRINT THIS FLOOR PLAN

Danbury II - AA / 1056 sq. ft.

3 Bedrooms – 1 3/4 Bathrooms