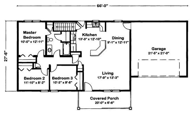
PRINT THIS FLOOR PLAN

Curryview II - AA / 1210 sq. ft.

3 Bedrooms – 1 Bathroom