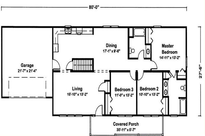
PRINT THIS FLOOR PLAN

Crestwood 5A - EH / 1559 sq. ft.

3 Bedrooms – 2 Bathrooms