PRINT THIS FLOOR PLAN

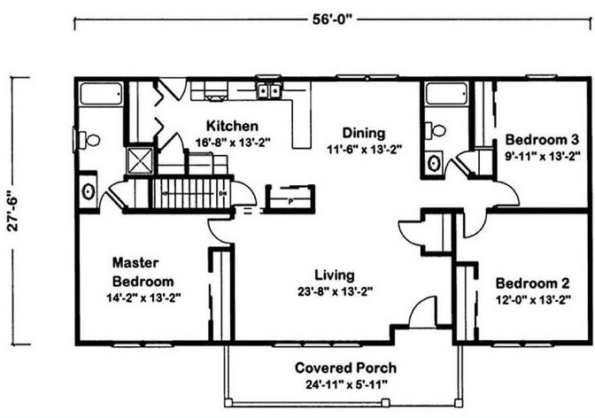
Crestwood 4A - EH / 1497 sq. ft.

3 Bedrooms – 2 Bathrooms