PRINT THIS FLOOR PLAN

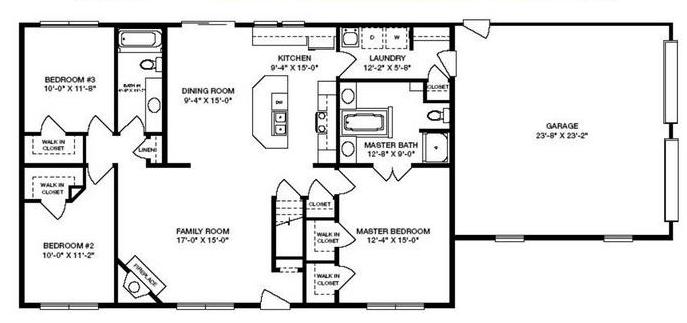
Cranbury - AA / 1512 sq. ft.

3 Bedrooms – 2 Bathrooms