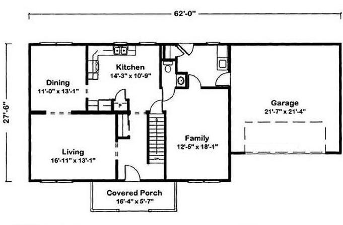
PRINT THIS FLOOR PLAN

Continental 3A - EH / 2163 sq. ft.

4 Bedrooms – 2 1/2 Bathrooms