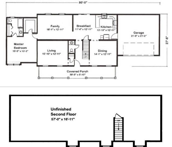
PRINT THIS FLOOR PLAN

Concorde II - AA / 1543 sq. ft.

1 Bedroom – 1 1/2 Bathrooms