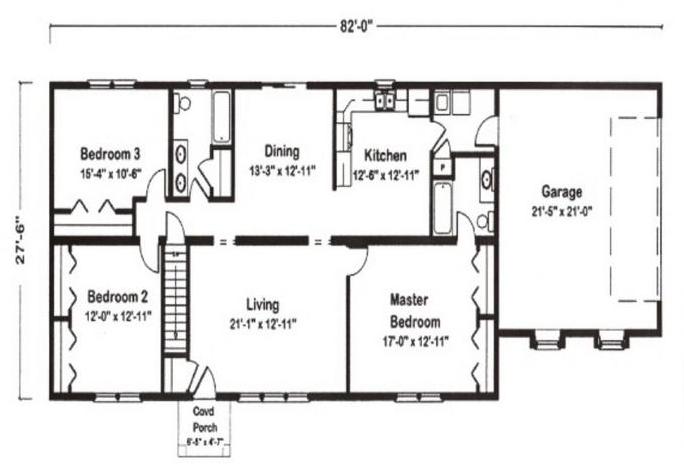
PRINT THIS FLOOR PLAN

Clinton II - AA / 1650 sq. ft.

3 Bedrooms – 2 Bathrooms