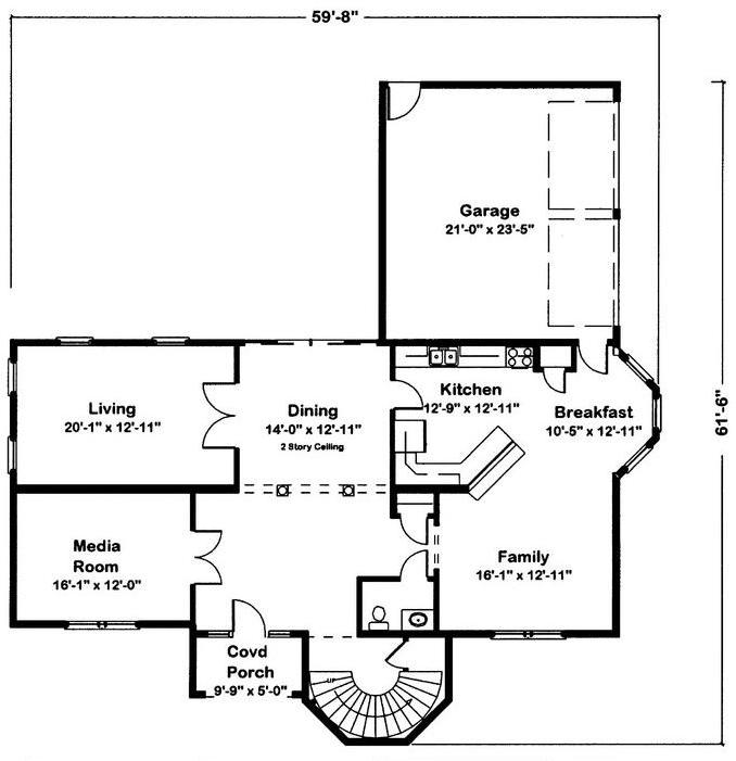
PRINT THIS FLOOR PLAN

Chesterfield II - AA / 2976 sq. ft.

3 Bedrooms – 2 1/2 Bathrooms