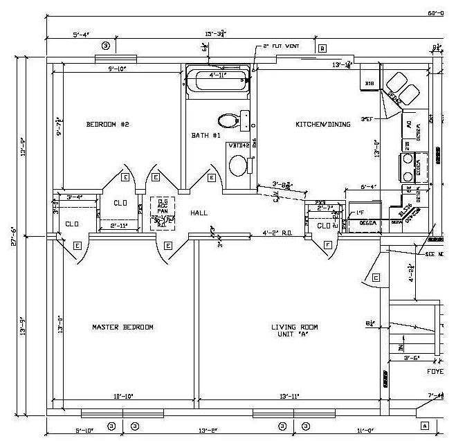
PRINT THIS FLOOR PLAN

Carroll - AA / 760 sq. ft.

2 Bedrooms – 1 Bathroom (per unit)