PRINT THIS FLOOR PLAN

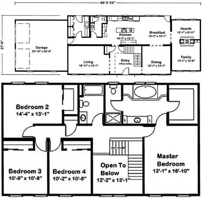
Carbondale - EH / 2809 sq. ft.

4 Bedrooms – 2 1/2 Bathrooms