PRINT THIS FLOOR PLAN

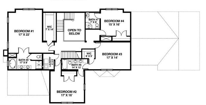
The Cambridge - PL / 4472 sq. ft.

5 Bedrooms – 4 Full and (3) 1/2 Bathrooms