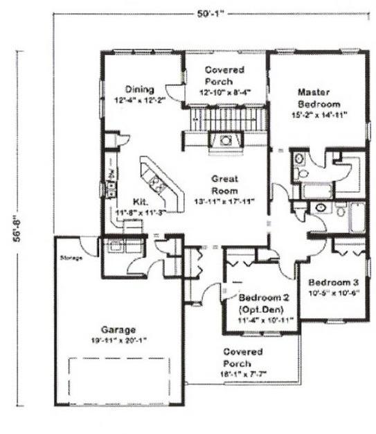
PRINT THIS FLOOR PLAN

Buckingham - AA / 1647 sq. ft.

3 Bedrooms – 2 Bathrooms