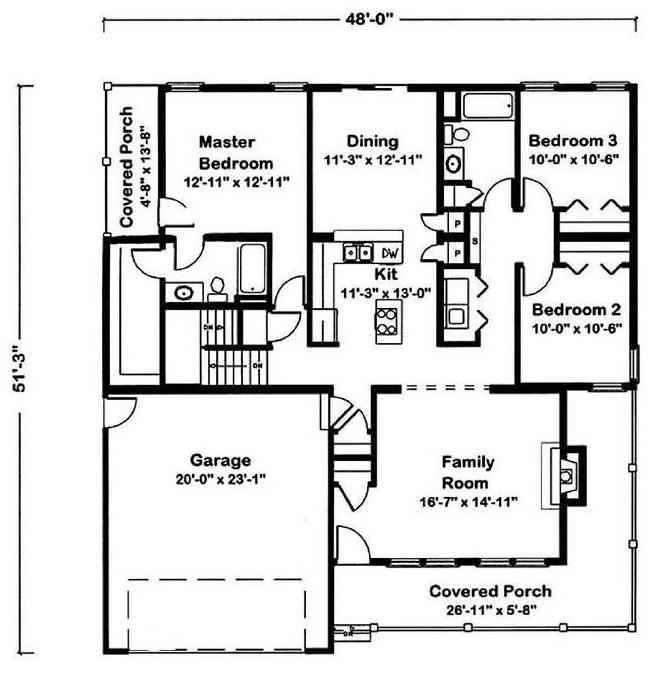
PRINT THIS FLOOR PLAN

Blue Ridge - EH / 1528 sq. ft.

3 Bedrooms – 2 Bathrooms