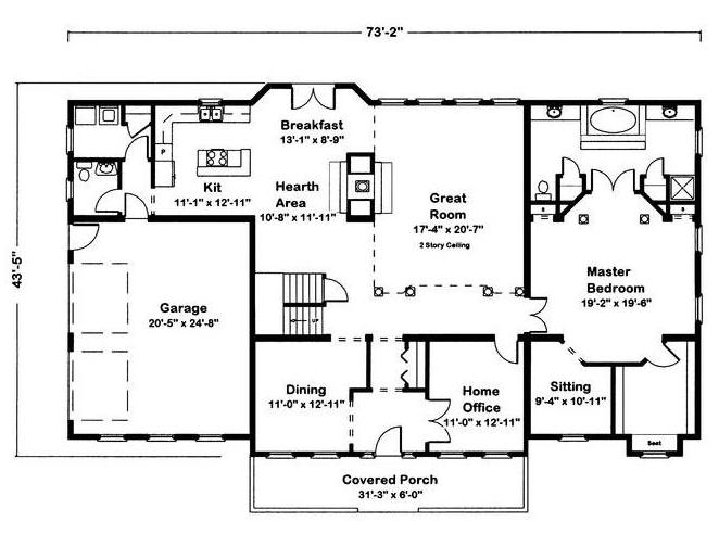
PRINT THIS FLOOR PLAN

Bethlehem II - AA / 2398 sq. ft.

1 Bedroom – 1 1/2 Bathrooms