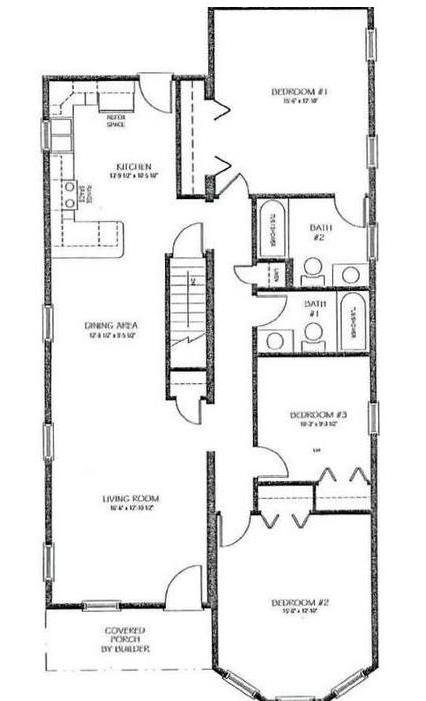
PRINT THIS FLOOR PLAN

Beuna Vista - IBS / 1394 sq. ft.

3 Bedrooms – 2 Bathrooms