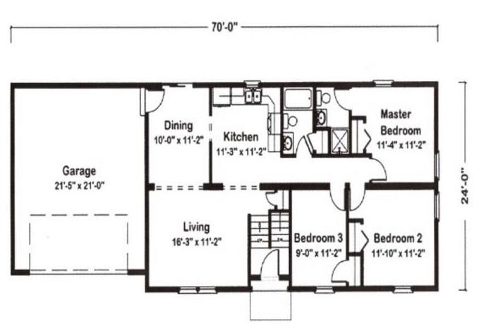
PRINT THIS FLOOR PLAN

Auburn II - AA / 1132 sq. ft.

3 Bedrooms – 1 3/4 Bathrooms