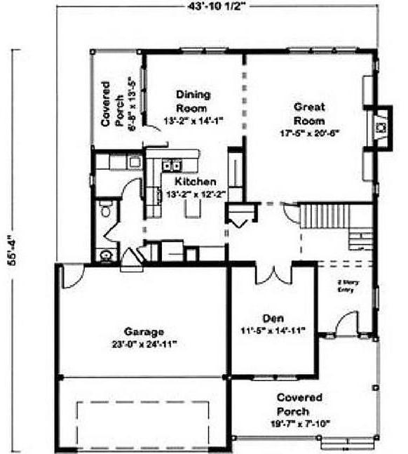
PRINT THIS FLOOR PLAN

Auburn - AA / 2586 sq. ft.

4 Bedrooms – 3 1/2 Bathrooms