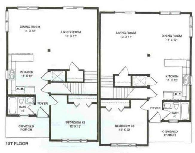
PRINT THIS FLOOR PLAN

The Wexford - PL / 3357 sq. ft.

3 Bedrooms – 3 Bathrooms