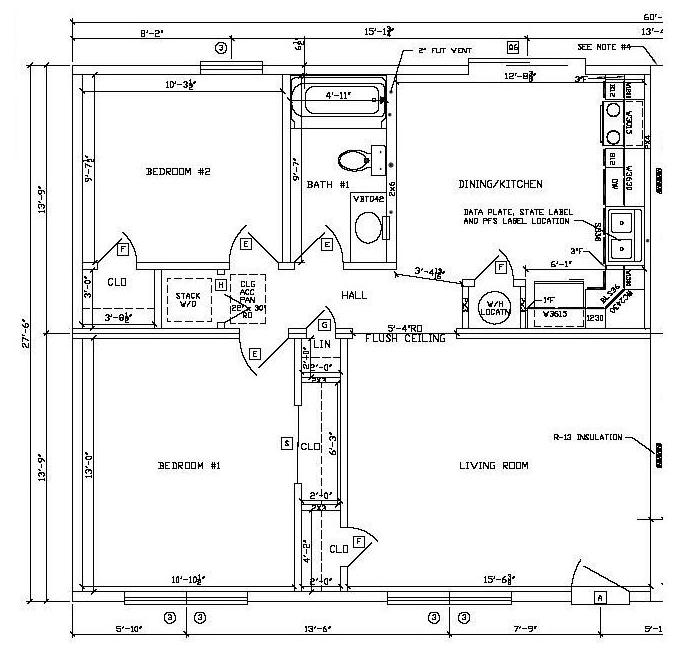
PRINT THIS FLOOR PLAN

Ventura - AA / 816 sq. ft.

2 Bedrooms – 1 Bathroom (per unit)