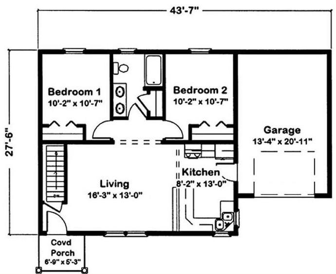
PRINT THIS FLOOR PLAN

Ultima R41 - EH / 770 sq. ft.

2 Bedrooms – 1 Bathroom