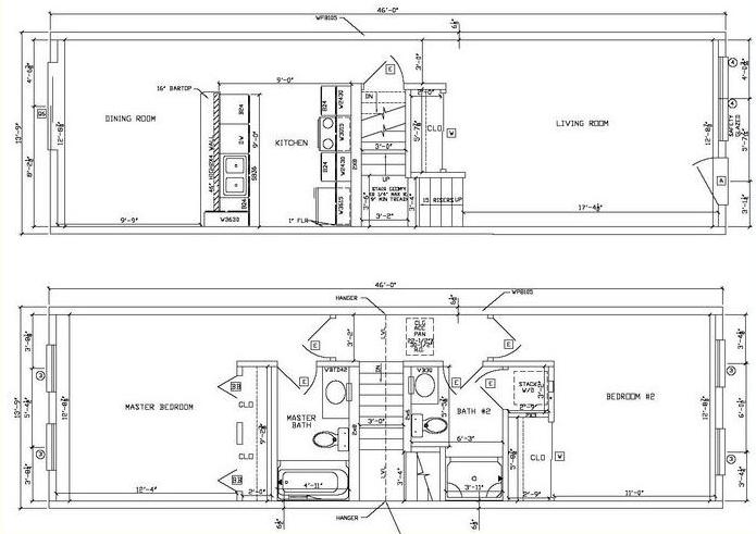
PRINT THIS FLOOR PLAN

Stockdale - AA / 1265 sq. ft.

2 Bedroom – 2 Bathrooms (per unit)