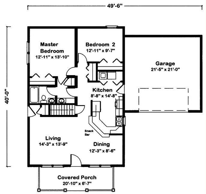
PRINT THIS FLOOR PLAN

Southport II - AA / 1100 sq. ft.

2 Bedrooms – 1 Bathroom