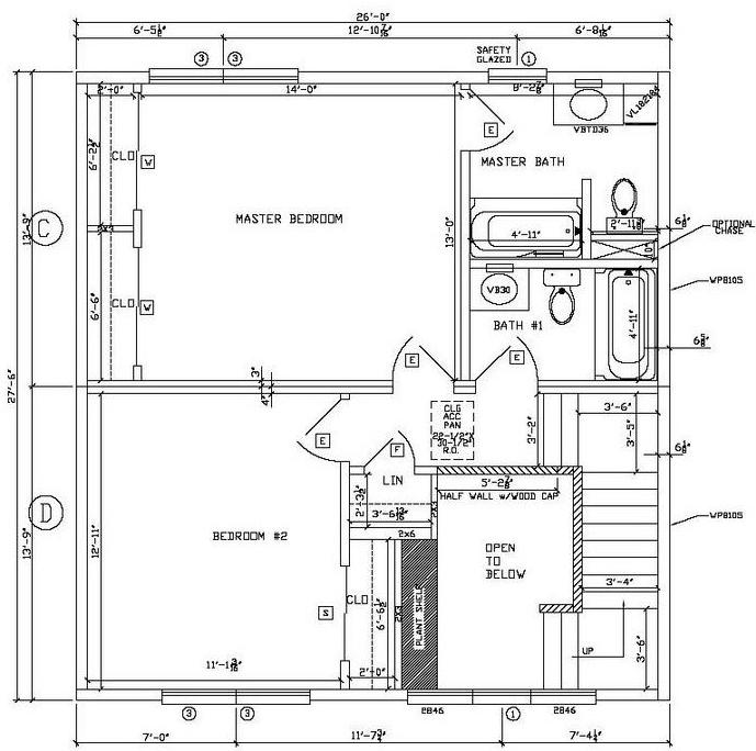
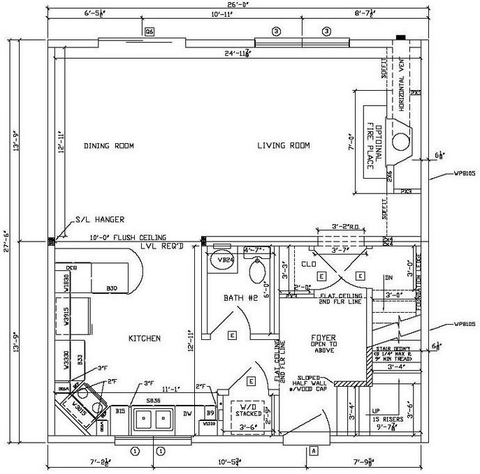
PRINT THIS FLOOR PLAN

Preston - AA / 1430 sq. ft.

2 Bedrooms – 2 1/2 Bathrooms (per unit)