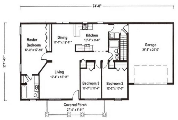
PRINT THIS FLOOR PLAN

Oakdale II - AA / 1430 sq. ft.

3 Bedrooms – 2 Bathrooms