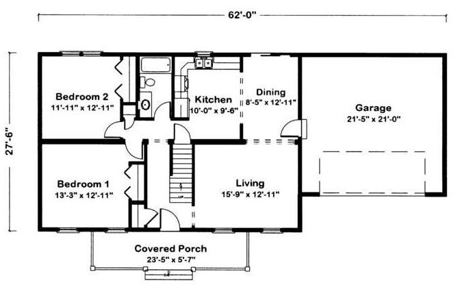
PRINT THIS FLOOR PLAN

Nantucket II - AA / 1100 sq. ft.

2 Bedrooms – 1 Bathroom