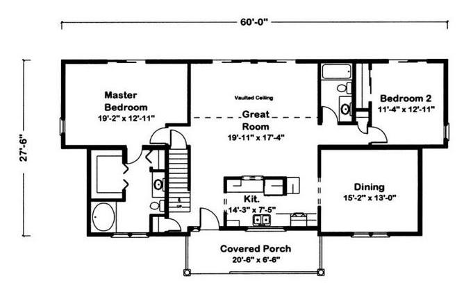
PRINT THIS FLOOR PLAN

Monterey II - AA / 1520 sq. ft.

2 Bedrooms – 2 Bathrooms