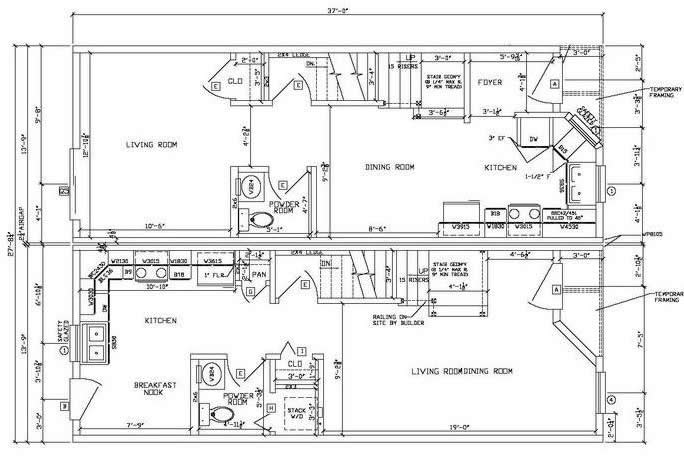
PRINT THIS FLOOR PLAN

Landon - AA / 976 sq. ft.

2 Bedrooms – 1 1/2 Bathrooms (per unit)