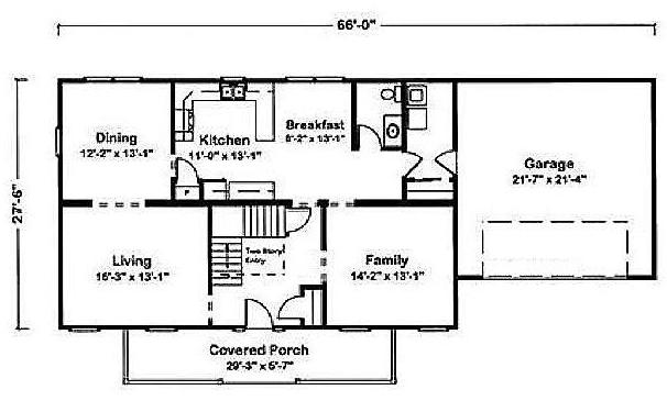
PRINT THIS FLOOR PLAN

Hamilton 2A - EH / 2377 sq. ft.

4 Bedrooms – 3 1/2 Bathrooms