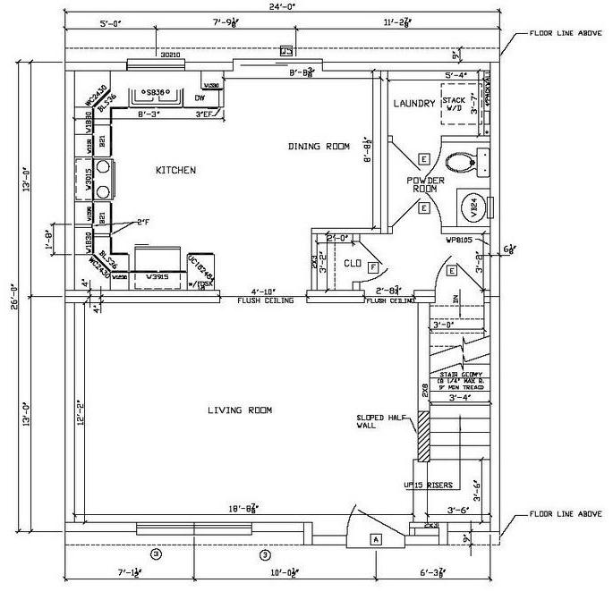
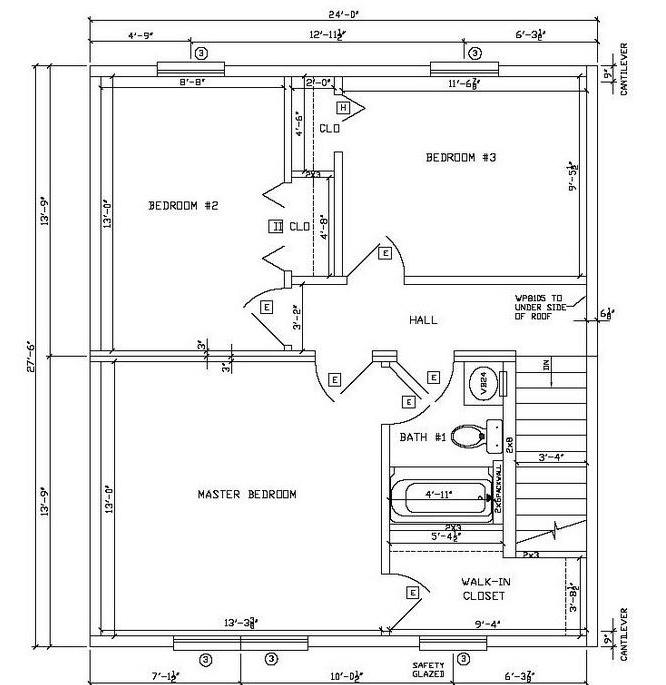
PRINT THIS FLOOR PLAN

Dunmore - AA / 1284 sq. ft.

3 Bedrooms – 1 1/2 Bathrooms (per unit)