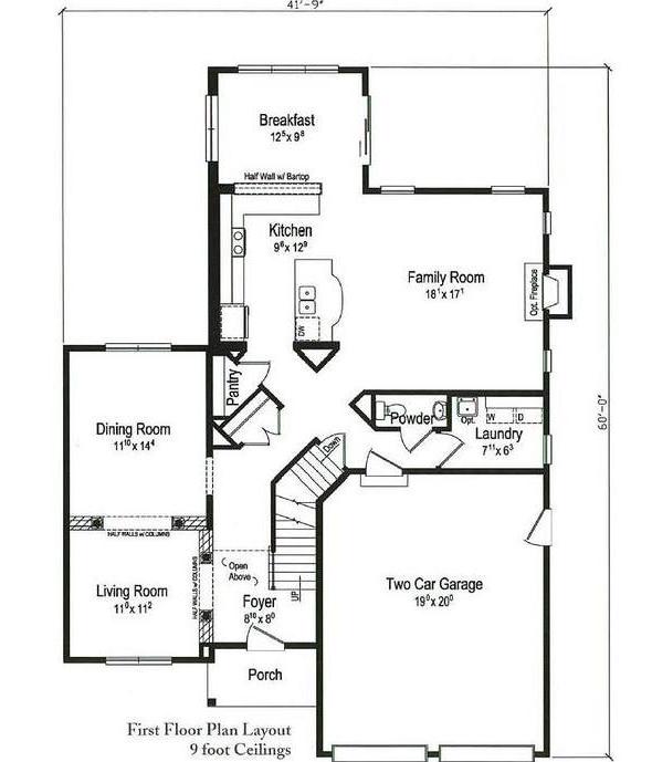
PRINT THIS FLOOR PLAN

Devlyn - AA / 2924 sq. ft.

4 Bedrooms – 3 1/2 Bathrooms