PRINT THIS FLOOR PLAN

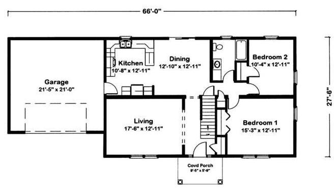
Chatham II - AA / 1210 sq. ft.

2 Bedrooms – 1 Bathroom