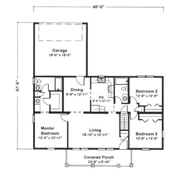
PRINT THIS FLOOR PLAN

Carmel II - AA / 1320 sq. ft.

3 Bedrooms – 2 Bathrooms