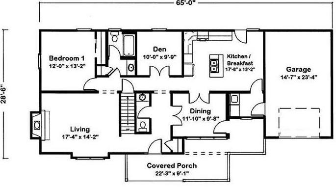
PRINT THIS FLOOR PLAN

Cape Cod 1A - EH / 1258 sq. ft.

1 Bedroom – 1 1/2 Bathrooms