PRINT THIS FLOOR PLAN

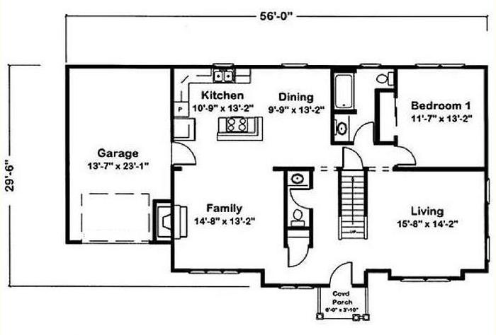
Cape Chelsey 1A - EH / 1177 sq. ft.

1 Bedroom – 1 1/2 Bathrooms