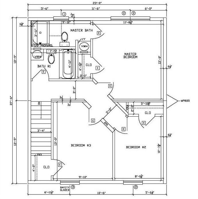
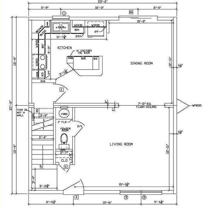
PRINT THIS FLOOR PLAN

Cannondale - AA / 1265 sq. ft.

3 Bedrooms – 2 1/2 Bathrooms (per unit)