PRINT THIS FLOOR PLAN

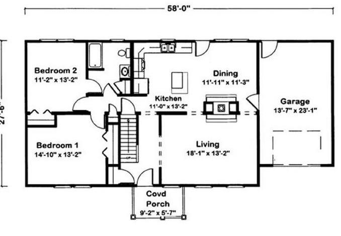
Brockway - EH / 1206 sq. ft.

2 Bedrooms – 1 Bathroom