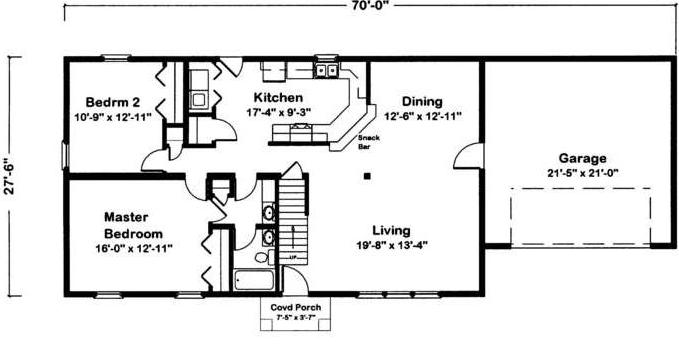
PRINT THIS FLOOR PLAN

Bayshore II - AA / 1268 sq. ft.

2 Bedrooms – 1 Bathroom