PRINT THIS FLOOR PLAN

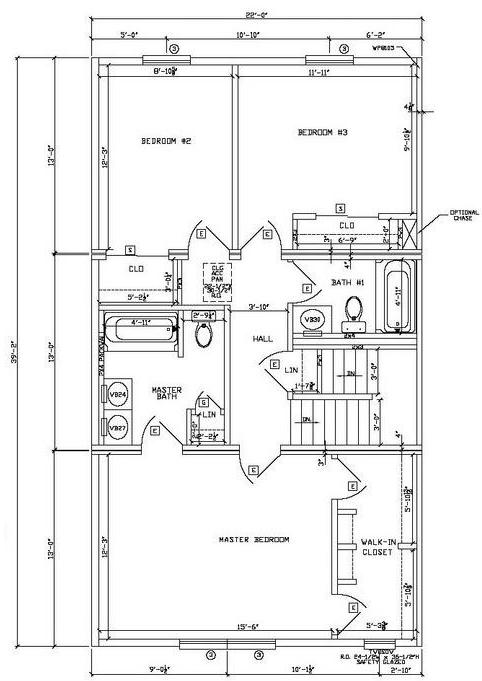
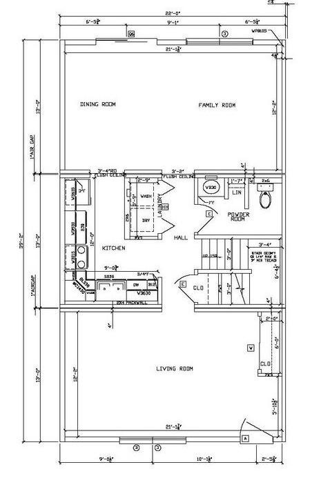
Ameila - AA / 1724 sq. ft.

3 Bedrooms – 2 1/2 Bathrooms (per unit)